Высотный комплекс, Хабаровск,
2017 – 2018 гг.
Место строительства проектируемого комплекса – Хабаровский край, г. Хабаровск, пересечение улиц Ленина и Калинина в Центральном районе г. Хабаровска.
Проектируемый комплекс включает многофункциональное высотное здание с конгресс холлом, тоннелем, подземными пешеходными переходами и паркингом.
Общая площадь пятна застройки надземных частей комплекса около 5 400 м2.
Проектируемый комплекс состоит из следующих частей (см. схему):
UT – конструкции тоннеля длиной 530м для автомобильного движения по ул. Ленина
BS – общая подземная часть, расположенная в границах участка строительства
SB – стилобатная часть, объединяющая левую и правую башни, включает конгресс-холл
HR1 – высотное здание 1 (левая башня) высотой 236м, состоящая из 56 этажей
HR2 – высотное здание 2 (правая башня) высотой 102м, состоящая из 26 этажей
Конструкции высотного здания 1 (левая башня) представляют монолитный железобетонный каркас, состоящий из ядра размером в плане 27,6х9,15м и колонн по периметру башни. Колонны запроектированы сталежелезобетонными, с сердечником из сляба.
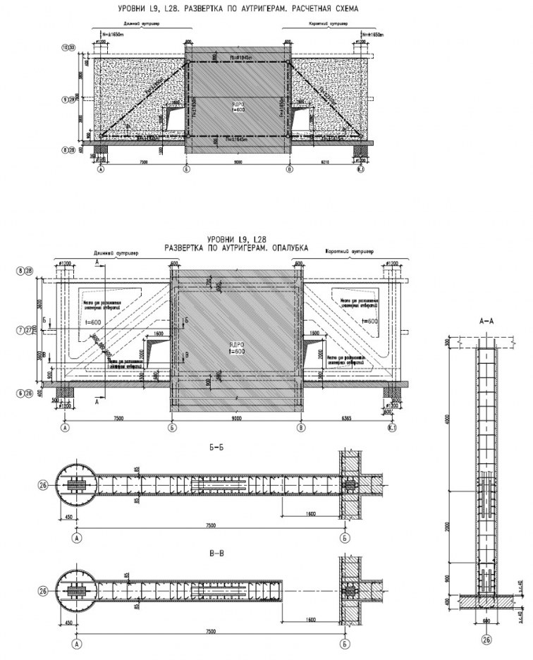
Для увеличения динамических характеристик и общей жесткости башни при действии ветровых нагрузок на 9, 28 и 46 этажах запроектированы аутригеры, соединяющие ядро с колоннами по осям 23, 24, 25 и 26. Высота аутригеров составляет 7,6м (высота в 2 этажа). На 9 и 28 этажах запроектированы сталежелезобетонные аутригеры, на 46 этаже – железобетонные. Конструктивные схемы аутригеров приведены в проекте.
Конструкции высотного здания 2 (правая башня) представляют собой монолитный железобетонный каркас с ядром жесткости и колоннами по периметру башни.
Конструкциями конгресс холла являются 2 металлические фермы пролетом 52,1м, опирающиеся на железобетонные конструкции башен. Высота ферм составляет 12,35м в осях, между ферм располагается непосредственно конгресс-холл и другие вспомогательные помещения.
| Статус объекта | Не реализован |
| Вместимость | 12000 зрителей |
| Общая площадь | 205 000 кв.м. |
| Заказчик | ООО "Офис-Центр" |
| Конструкторы | Шахворостов А.И, Зеленов Д.В, Иващенко А.Н. |
| Выполненные работы | Конструктивная Концепция |
| Период работы | 2017 – 2018 гг. |









