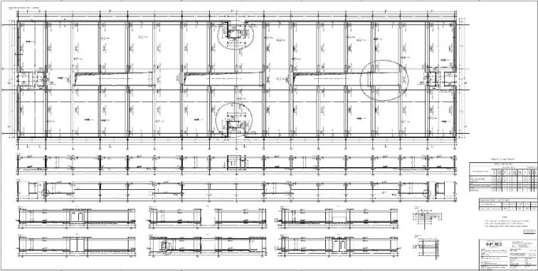
Здание паркинга. Копер, Словения
05.2021 – 04.2022
| Инвестор: | Община города Копер |
| Локация: | Копер, Словения |
| Архитектор: | Kombinat Arhitekti |
| Конструкторы: | А. Шахворостов, Д. Зеленов, Ф. Дамьянов |
| Подрядчик: | Makro 5 |
| Количество этажей: | P+2 |
| Размер в плане: | 135,6m x 36,3m |
| Период проектирования: | 05.2021 – 04.2022 |
| Окончание строительства: | 2022 |
ВЫПОЛНЕННЫЕ РАБОТЫ:
PZI – Projekt za izvedbo
PID – Projekt izvedenih del
PN – Projektantski nadzor














