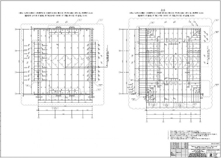
Драматический театр. Астана, Казахстан
05.2019 – 05.2020
| Локация: | Астана, Казахстан |
| Архитектор: | IT Engineering SA |
| Конструкторы: | А. Шахворостов, А. Тимофеевич |
| Период проектирования: | 05.2019 – 05.2020 |
| Окончание строительства: | 2020 |
ВЫПОЛНЕННЫЕ РАБОТЫ*
Стадия Проект
Стадия Рабочая документация
Авторский надзор
*Металлические конструкции покрытия залов













