Аэропорт Геленджик,
06.2019 – 07.2020
В декабре 2018 года был выбран проект нового терминал аэропорта Геленджик. Победителем конкурса стало итальянское архитектурное бюро Fuksas. Согласно концепции, новый терминал аэропорта Геленджик помимо современного дизайна, будет заключать в себе основные тенденции защиты окружающей среды и экономии электроэнергии.
Новый терминальный комплекс аэропорта Геленджик начали возводить в 2020 году, завершить строительство планируют к началу курортного сезона 2022 года. Площадь нового аэровокзального комплекса составит примерно 16 700 м2 После запуска нового терминала аэропорт сможет увеличить пропускную способность в пять раз – до 890 пассажиров в час.
По заказу Спектурм-Холдинг в июне 2019 г. Инфорспроект приступил к разработке конструктивных решений основных несущих конструкций здания. В объем работ включены железобетонные конструкции фундаментов, конструкции -1-го этажа, конструкции внутренних павильонов, конструкции входов и металлические конструкции фахверков.А также был выполнен общий расчет всего здания, включая металлические конструкции покрытия (которые были разработаны другой компанией).
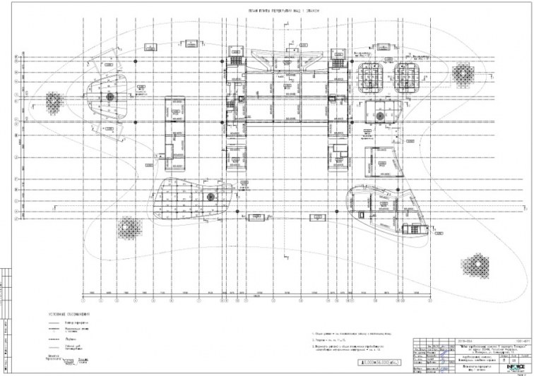
Структурные конструкции покрытия здания опираются на 9 внутренних сталежелезобетонных колонн диаметром 1220 мм переменной высотой 15-20 м. и 4 наружных металлических структурных колонны.
Помимо разработки и успешной защиты проекта в июле 2020 в Главгосэкспертизе России Инфорспроект также выполнил тендерную документацию.
Уникальные конструктивные решения. В процессе проектирования несущих конструкций команда Инфорспроекта столкнулась с серьезными вызовами. Основным требованием Заказчика к проекту конструкций было обеспечить такое конструктивное решение, которое бы на 100 процентов соответствовало авторскому архитектурному решению. В частности, архитектурное решение не предусматривало традиционные для таких случаев вертикальные связи по колоннам каркаса для передачи сейсмических сил от покрытия (сейсмическое ускорение составляло 2,02 м/с2). В результате авторы проекта из Инфорспроекта разработали уникальный жесткий узел стыка колонны с фундаментной плитой, способный воспринять огромные изгибающие моменты, возникающие при сейсмическом воздействии.
Сложные расчеты на сейсмические нагрузки. В соответствии с требованиями норм для уникального объекта, находящегося в зоне высокой сейсмической опасности, был выполнен целый ряд расчетов на сейсмические воздействия: на сейсмическую нагрузку, соответствующую уровню проектного землетрясения (ПЗ) по линейно-спектральной теории, на максимальное расчетное землетрясение (МРЗ) и проверочный расчет на динамическое воздействие в виде синтезированных акселерограмм.
| Статус объекта | Строится |
| Площадь | 16700 м. кв. |
| Заказчик | Спектрум-Холдинг |
| Архитектор | Спектрум-Холдинг |
| Конструкторы | Иващенко А.Н, Зеленов Д.В, Варфоломеев С.С. |
| Выполненные работы | Проектная документация. Тендерная документация |
| Период работы | 06.2019 - 07.2020 |















