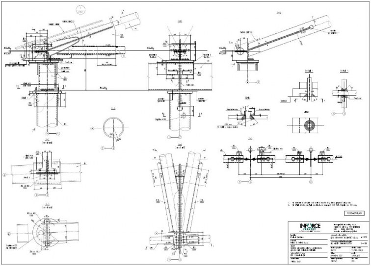
Покрытие летнего театра Крижанке. Любляна, Словения
11.2020 – 08.2021
| Инвестор: | Festival Ljubljana |
| Локация: | Ljubljana |
| Архитектор: | Architecta |
| Конструкторы: | А. Шахворостов, Д. Савельев, М. Десяткин, О. Анфиногенова |
| Подрядчик: | Makro 5 |
| Размеры покрытия: | 50,7m x 35,6m |
| Период проектирования: | 11.2020 – 08.2021 |
| Окончание строительства: | 2021 |
ВЫПОЛНЕННЫЕ РАБОТЫ:
DGD – Dokumentacija za pridobitev gradbenega dovoljenja
PZI – Projekt za izvedbo
PID – Projekt izvedenih del
PN – Projektantski nadzor













